Gruppo Green Design - Padova, Italia

Gruppo Green Design

Padova, Italia

12 kWp

11°°

Flag

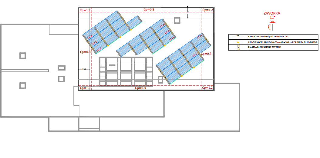
It is never too early to start producing green energy. On the flat roof of this villa still under construction, this photovoltaic system capable of producing 12 kwp of renewable energy was installed by our customer Green Design Group.

The ballasts of the Sail system with 11 ° inclination, selected and used by our customer in agreement with the Sun Ballast technical department, are certainly the most suitable choice when you want to achieve the goal of producing all the energy you have. need making the most of the space available on the roof. The 11 ° Sail system is made up of three rows of different panels which, however, can be easily modulated according to needs and especially in the presence of obstacles on the roof. As in the case of this villa in which it was decided to exploit the great versatility of this system to easily avoid skylights on the roof by also installing single rows.

Share now:

    Want to know more about this project or Sun Ballast systems? Contact us!

    Privacy*

    I authorize the processing of my data according to the provisions of the Privacy Policy of Basic S.B.R.L.

    Accept
    Icon quotation

    Request now a

    Custom Quote

    Ask a quotation!
    Icon support

    You need

    Technical assistance?

    CONTACT US NOW